28.09.2016 09:38 0 Redakcja / TTM

Po 40 latach mieszkańcy Pucka doczekają się szpitalnej windy

fot. TTM

Najpóźniej wiosną przyszłego roku rozpocznie się budowa windy w puckim szpitalu. We wtorek (27 września) zaprezentowano projekt techniczny inwestycji, w ramach której powstaną również nowe gabinety. Pozwolenie na budowę jest już przygotowane, powiat zabezpieczył także środki na jej realizację - podaje w swoim Serwisie Informacyjnym radio Norda FM.

Wizualizacje inwestycji zaprezentowano podczas specjalnej konferencji. Spotkanie odbyło się w miejscu, w którym najpóźniej wiosną przyszłego roku ruszą prace budowlane.

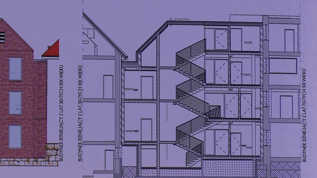
  • Zaprojektowaliśmy zupełnie nowy, czterokondygnacyjny budynek z ważnymi dla tego szpitala funkcjami, nie tylko windą, ale także dodatkowymi pomieszczeniami – mówi w wywiadzie dla Twojej Telewizji Morskiej Jarosław Białk, pucki starosta.

fot. TTM fot. TTM fot. TTM fot. TTM fot. TTM fot. TTM fot. TTM fot. TTM fot. TTM

Projekt techniczny zakłada powstanie nowego budynku pomiędzy dwoma obecnie istniejącymi obiektami. W łączniku znajdą się dwie windy oraz gabinety lekarskie.

  • Stworzenie projektu i pełnej dokumentacji przekonało mnie, że można to zrobić. W tej chwili nie mam wątpliwości co do tego, że w bardzo krótkim czasie ta winda w końcu powstanie – przekonuje Danuta Ceszke, prezes szpitala w Pucku.

Zadanie będzie kosztowało około 2 milionów złotych. Pół miliona powiat zarezerwował w ramach własnych środków, drugie tyle będzie pochodziło ze sprzedaży powiatowych nieruchomości lub kredytu, a kolejny milion ma dołożyć ministerstwo rozwoju. Pomoc obiecały również lokalne samorządy, włodarze są zdeterminowani, by zamknąć temat windy raz na zawsze.

  • Pracujemy wszyscy ze zdwojoną siłą, żeby tę sytuację zmienić, po tych 40 latach szpitala bez windy – zapewnia Jolanta Bieszke, członek zarządu powiatu puckiego.

  • Powiem szczerze, że trudno nawet nam się chwalić inwestycją, która powinna być tak naprawdę zrealizowana już wiele lat temu – podsumowuje pucki starostwa.

W przyszłym tygodniu ruszy procedura przetargowa na wyłonienie wykonawcy, proces może trwać nawet kilka miesięcy. Włodarze mają jednak nadzieję, że prace rozpoczną się jeszcze w tym roku.


Czytaj również:

Trwa Wczytywanie...